
Project in collaboration with Gustav Lantto
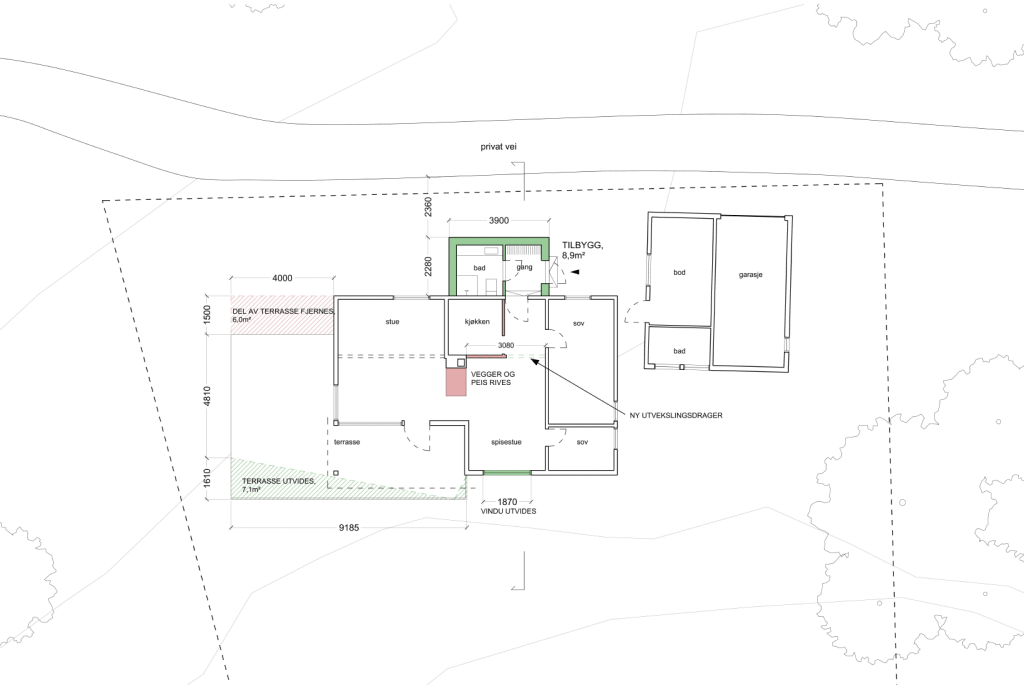
This project is a small-scale cabin extension that has been approved for construction and is scheduled to be built in 2026. The intervention addresses two fundamental deficiencies in the existing structure: the absence of an indoor bathroom and the lack of adequate storage. Rather than treating these requirements as isolated programmatic additions, the project reframes them as an opportunity to rethink the transition between exterior and interior.
The extension introduces a new entrance sequence conceived as a mediated threshold between landscape and cabin. Through a distinct material shift, most notably tiled flooring the space accommodates wet functions and storage while clearly differentiating itself from the heated interior.
Illustrations





Drawings




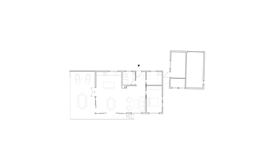
Alternative Strategy Within Existing Footprint
During the development of the project, an alternative strategy was explored that operated entirely within the existing building volume. This approach reorganized the internal layout to accommodate bathroom and storage functions without extending the footprint, thereby avoiding any increase in BYA. The study functioned as a spatial test of how programmatic deficiencies could be resolved through reconfiguration rather than addition, and informed the final proposal by clarifying which qualities could be achieved internally and which required a new threshold space.
